Descrizione
Splendido Bilocale ristrutturato con ottime finiture
Casa - MILANO MI
Nella caratteristica Via Enrico Noe, a pochi passi dallo storico Bar Basso, da Via Plinio e da Corso Buenos Aires, proponiamo in locazione ampio bilocale RISTRUTTURATO A NUOVO E COMPLETAMENTE ARREDATO, estremamente silenzioso e a pochissima distanza dal cuore di Milano!
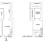
L’appartamento finemente ristrutturato da architetto e completamente arredato è disposto su due livelli. La diposizione è la seguente: al piano terra troviamo l’ingresso che da direttamente sull’ampio salone, spaziosa cucina abitabile, comodo bagno; il piano terra è collegato da una comoda scala interna ad un ampio soppalco dov’è ubicata la zona notte composta da camera matrimoniale, ampissima cabina armadio e una comoda zona studio o seconda cameretta.
Le condizioni dell’appartamento sono perfette, completamente ristrutturato a nuovo, dispone di impianti a norma, aria condizionata, infissi con doppi vetri, porta blindata. Ristrutturazione curata nei dettagli da architetto e compreso l’intero arredo.
Elegante e con finiture ricercate: gres porcellanato come pavimentazione, splendida cucina di design completa di tutti gli elettrodomestici, incantevole bagno con piastrelle di ottima qualità, splendido soppalco con pavimentazione in vetro, cabina armadio con arredi in legno su misura al suo interno; l’appartamento gode di un’immensa tranquillità e silenzio pur essendo nel centro città, godendo dei suoi servizi e di tutte le sue comodità!
Lo stabile d’epoca primi ‘900 è stato completamente rivisto di recente nelle parti comuni, servizio di portineria tutto il giorno, possibilità di posteggio bici nel cortile interno e riscaldamento autonomo.
La zona residenziale e signorile offre ogni tipo di servizio, piccola e grande distribuzione nelle immediate vicinanze, a pochi passi dal centro, e quindi dal Duomo di Milano. Estrema vicinanza alla metropolitana Piola – Lima – Loreto.
Canone mensile euro 1.200 oltre a 100 euro di spese condominiali mensili.
LIBERO DAL 1 LUGLIO 2024!!
RICHIESTE REFERENZE.
Cl. Energ. F – IPE 252,54 kWh/m²a
Qualsiasi appartamento in nostra gestione può essere acquistato a seguito della vendita del Vostro appartamento; potete contattarci per una VALUTAZIONE GRATUITA del vostro immobile.
Mondani Immobiliare Fisso: 02.202.40.283 – Mobile: 392.013.65.00
Ci trovi anche su Facebook, cerca Mondani Immobiliare.
Informazioni e immagini contenute in questo annuncio hanno scopo prettamente informativo e non costituiscono, in alcun caso, elemento contrattuale.
Caratteristiche della struttura
- Casa
- 2 letto
- 1 bagno
- Superficie è 75 m²
- Furnished





















