Descrizione
BILOCALE RISTRUTTURATO CON TERRAZZO LIBERO SUBITO!!
Casa - Milano
Adiacenze Via Eustachi, in Via Stoppani, proponiamo in locazione splendido bilocale con terrazzo, silenziosissimo e luminosissimo!
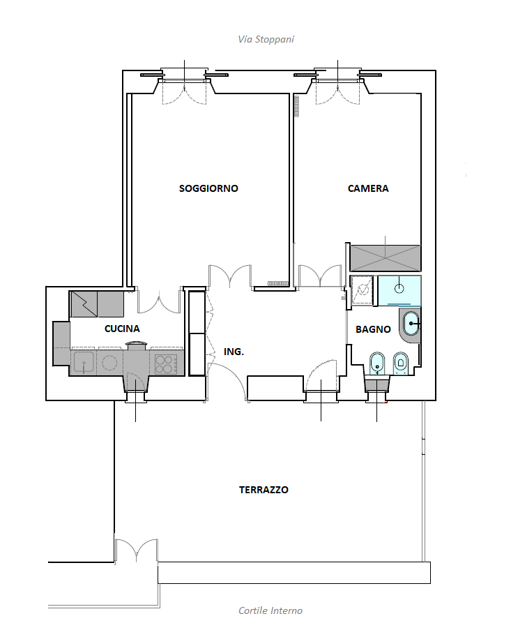
L’appartamento gode di doppia esposizione interna ed esterna, è sito al primo piano in uno splendido contesto d’epoca inizi ‘900. L’immobile ha una metratura di 75 mq commerciali di cui 60 di appartamento più 30 mq ca di terrazzo ed è così composto: accesso dal terrazzo ad uso esclusivo, ampio ingresso, soggiorno, cucina semi abitabile, camera da letto matrimoniale e bagno finestrato con box doccia.
La casa beneficia di una splendida ed ineguagliabile silenziosità, esponendosi sia sul cortile interno e sia sulla tranquilla Via Stoppani. Si presenta in ottime condizioni interne con ristrutturazione terminata di recente e ancora mai abitato con arredi su misura.
Le finiture sono ottime: pavimentazione in splendido parquet, infissi con doppi vetri PVC, bagno con box doccia ed armadiature su misura.
Lo stabile d’epoca anni ’20 circa si presenta con un bellissimo ed ampio androne, riscaldamento centralizzato con radiatori.
Parti comuni in ottime condizioni generali.
L’appartamento si trova in un condominio di tre piani a davvero a pochi passi dalla metropolitana Lilla MM Dateo, zona residenziale e signorile che offre ogni tipo di mezzo di comunicazione, piccola e grande distribuzione nelle immediate vicinanze.
Prezzo 1.600 euro mensili oltre ad euro 200 mensili di spese condominiali compresa la quota di riscaldamento.
LIBERO SUBITO
Si richiedono referenze.
Cl. Energ. F – IPE 209,10 kWh/m²a
Qualsiasi appartamento in nostra gestione può essere acquistato a seguito della vendita del Vostro appartamento; potete contattarci per una VALUTAZIONE GRATUITA del vostro immobile.
Mondani Immobiliare Fisso: 02.202.40.283 – Mobile: 392.01.36.500
Ci trovi anche su Facebook, cerca Mondani Immobiliare.
Informazioni e immagini contenute in questo annuncio hanno scopo prettamente informativo e non costituiscono, in alcun caso, elemento contrattuale.
Caratteristiche della struttura
- Casa
- 2 letto
- 1 bagno
- Superficie è 75 m²
- Furnished






































